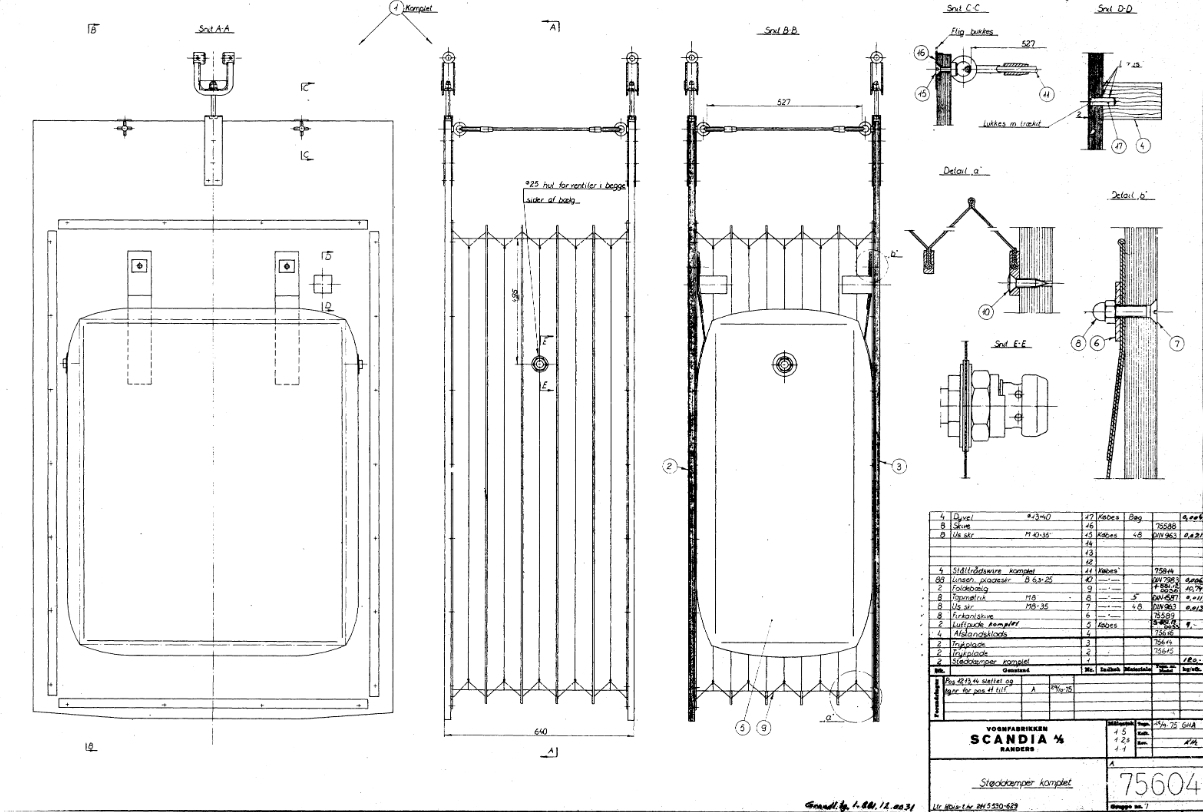
Transportschutzwände System Daberkow

DK13830

Transportschutzwände System Daberkow.

- 1975, © Scandia Werksfoto, Danmarks Jernbanemuseum, www.jernbanekilder.dk: SCA_75604_A


Zurück zu Transportschutzsystemen